店舗内装デザイン設計の業務経過レポート。
2011年9月19日敬老の日、プランの打ち合せを行いました。
新しい区画で、レイアウトを3案、提案させて頂きました。
下の図面右側がファサードです。
現場の写真は、ちょうど図面右から左を見たショットです。
店舗前道路の人の流れから考えて、エントランスは、店舗区画に向かって右が良いと考えました。
3案は、厨房位置のバリエーションで作成しました。
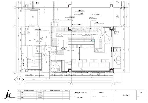
A案

A案は、図面上側に厨房を持ってきた案です。
割とオーソドックスなレイアウトです。
B案

B案は、厨房を図面下側にしたレイアウトです。
バルに機能する席数を確保した案としました。
C案

C案が、以前の記事で「ひらめいた」と書いた案です。
厨房を区画の中心に持って来て、バルとレストランを区切る案です。
お勧め案、メリット・デメリット
お薦めは、C案。
メリット
バルとレストランを独立した空間に出来ます。
お客様の用途で、お店を使い分けて頂けます。
そして、2つの空間を違った内装デザインにして、それぞれの空間を別の店舗の様に楽しむ事ができます。
2つの空間への厨房からのアクセスも、見通しも良いです。
とても、万能なプランです。
デメリット
厨房が、壁が少なくかなりオープンになります。
シェフであるオーナーの「料理をつくる」使い勝手に問題ないと判断頂けるかです。
一通り、メリット・デメリットなどをご説明させて頂きました。
C案にもかなり興味を持って頂きました。じっくり検討されるとの事です。
次のピエドラの店舗デザインレポート
前回のピエドラの店舗デザインレポート
只今のBGM “Why Not!” Caribe / Michel Camilo









