世界で唯一のハーフサイズ1眼レフカメラ オリンパス・ペンFのよる作品のフォトエッセイ「時を超えるカメラ」、機械式フィルムカメラ入門書「憧れカメラスタイル
」の著者MazKenさん主催する「ペンスケッチ展4」に参加させていただくことになりました。
以前にも書きましたように、フルマニュアルカメラを触るのはペンが初めてですので、無謀にも程がありますが、「自分なりに作品制作を楽しめる」ことが参加資格とのことですので、遠慮なく参加させていただきました。
詳細は、こちらのオフィシャルページをご覧ください。
さて今回は東京に加え、初めて神戸でも開催されることになりました。
特に神戸会場は、総勢46名の参加者に対して、会場が狭く、会期中入れ替えを行う予定です。
それでも、一人の展示スペースは十分に取れない様子。
そこで、関西参加者の中で、現地を下見することになり、私が現調に行ってきました。
会場は、なんと神戸異人館のひとつ「ラインの館」です。
こんな歴史建造物の1室を自由に借りることができるなんて、知りませんでした。

ラインの館に到着。
大正4年(1915年)に建築された、木造2階建下見板張りオイルペンキ塗りの異人館です。
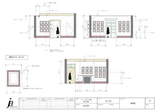
幸いにも、正確な寸法の記入された平面図を資料として頂けましたので、高さのみを現調し、
引き上げました。
事務所に戻り、早速展開図を作成、想定でA4サイズの額をレイアウトしてシュミレーションしてみました。

やっぱり、あまり展示できないですねえ。
さあ、どうするか。MazKenさんと相談です。
只今のBGM “Lady Sings” Fractures/Break Reform
ペンスケッチ展その1






東さん、お邪魔します。
空間デザイナーの方は、仕事柄何人か知っていましたが、大イベントのブースを手掛ける方がほとんどで、ペンスケ展など相手にしてもらえませんでした。
東さんのようなプロに、いきなり図面を引いてもらい驚いています。
たしかにペンスケ展は注目度が高まり、素人の学芸会的な雰囲気から脱却の時期に来ています。
無論、「みんなちがって、みんないい」という希望者全員参加、自由なテーマと展示スタイルのコンセプトは継承してゆくつもりですが、会場の設営にプロが参画していただくとずいぶん違って来るでしょう。
今回はお試しですが、次回からは企画段階から本領を発揮していただきたいと思います。
短い準備期間となりましたが、よろしくお願いします。
>Re:MazKenさん
コメント、ありがとうございます!
私としては、このブログの私の素人写真を見ていただくことに恐縮します。(笑)
ご期待に添えるような「質の高い」アイディアで、会場設営の面でも楽しく参加させてください。
今後とも、よろしくお願い致します!